2017/06/08

施設の紹介
施設の紹介

施設の紹介

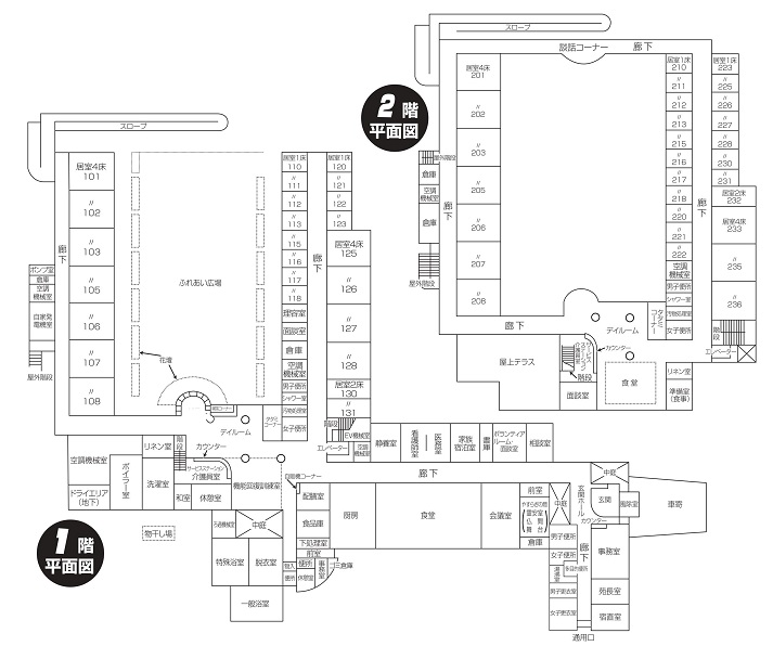
居室は1階、2階とも個室、2人部屋、4人部屋があり、各室にトイレと洗面台を設置してあります。
浴室は個浴、座浴、寝浴を用意し、入居者様の状態に合わせた方法で安全に安心して入浴していただけます。
また、車椅子利用者に配慮した広い廊下と、皆さんと一緒に楽しく食事ができる広い食堂がそろっています。

施設玄関
施設玄関
1階 廊下
1階 廊下
個室
個室
4人部屋
4人部屋
2階 デイルーム
2階 デイルーム
1階 食堂
1階 食堂
個浴・座浴
個浴・座浴
寝浴
寝浴

苑内配置図

平面図
平面図

ホームへ先頭へ前へ戻る